Фасадная кассета из оцинкованной стали открытого типа, цена за 1 м2

1650,00
р.
Полка/руст, мм: 20/20
Применение: облицовка вентилируемых фасадов, входных групп, объектов малоэтажного строительства, стен и потолков, отделка интерьеров
Тип крепления: открытый
Материал: оцинкованная сталь
Цвет: любой по каталогу RAL
Покрытие: порошковая окраска
Изготовление: под заказ
Срок изготовления: от 3 рабочих дней
Описание
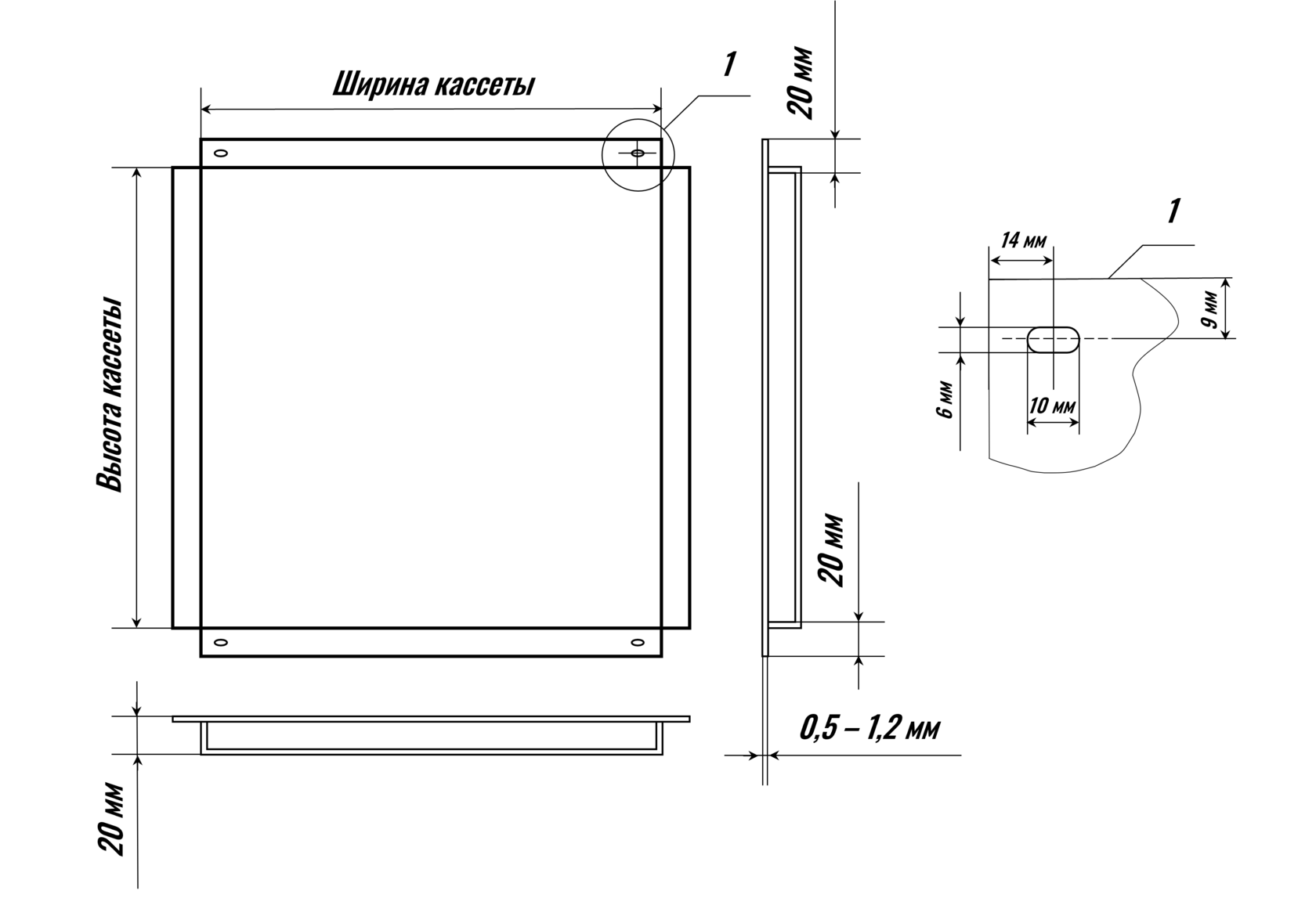
Чертeж
Как купить
Оплата
Условия доставки

Описание

ФАСАДНЫЕ МЕТАЛЛОКАССЕТЫ ОТКРЫТОГО ТИПА

Фасадные металлокассеты открытого типа — практичное и современное решение для облицовки вентилируемых фасадов. Они изготавливаются из оцинкованной стали, придают зданию аккуратный архитектурный вид и подходят как для типовых, так и для индивидуальных проектов.

Монтаж выполняется открытым способом: полки кассет накладываются друг на друга и крепятся заклёпками или саморезами, окрашенными в цвет облицовки. Такое решение обеспечивает надёжную фиксацию, удобство монтажа и аккуратный внешний вид фасада. Конструкция открытого типа также удобна в обслуживании: при необходимости отдельные кассеты можно заменить без демонтажа всей облицовки.

ПРЕИМУЩЕСТВА МЕТАЛЛОКАССЕТ ОТКРЫТОГО ТИПА:
✔ современный и строгий внешний вид фасада;
✔ прочная конструкция из оцинкованной стали;
✔ порошковая окраска в любой цвет по каталогу RAL;
✔ стандартные и нестандартные размеры по чертежам;
✔ удобный монтаж и возможность замены отдельных кассет;
✔ решение для облицовки объектов различного назначения.

ХАРАКТЕРИСТИКИ:
глубина кассет — 20 мм;
расстояние между кассетами (руст) — 20 мм;
толщина металла — от 0,5 до 1,2 мм;
возможны нестандартные размеры по чертежам;
покрытие — порошковая окраска по каталогу RAL.


Фасадные металлокассеты применяются для облицовки жилых домов, административных зданий, магазинов, АЗС, торговых и бизнес-центров, медицинских и спортивных объектов.
Вы можете заказать металлокассеты стандартных размеров или изготовление по индивидуальным параметрам. Мы поможем подобрать подходящее решение под ваш объект, рассчитаем стоимость и сориентируем по срокам изготовления и условиям доставки.

Оставьте заявку на сайте — менеджер свяжется с вами, ответит на вопросы и подготовит расчёт.

Чертeж

ЧЕРТEЖ металлокассеты открытого типа









Как купить

Выберите нужный товар и добавьте его в корзину.
Перейдите в корзину, заполните форму и нажмите кнопку «Оформить заказ».

В примечании к заказу желательно указать информацию, которая поможет с подбором товара: цвет, размеры, количество и ваши пожелания.

После оформления заявки с вами свяжется менеджер, уточнит детали заказа, ответит на вопросы, согласует оплату, доставку и подтвердит заказ.

Оплата

Оплатить заказ можно наличным и безналичным способом.
Мы работаем с физическими лицами, ИП и организациями.
Работаем с НДС.
Заказ оформляется по 100% предоплате.
Как проходит оплата:
  1. Вы оформляете заказ.
  2. Менеджер связывается с вами и уточняет детали.
  3. Мы выставляем счёт на оплату или согласовываем другой способ оплаты.
  4. Товар резервируется на 1 рабочий день с возможностью продления по согласованию.
  5. Вы оплачиваете заказ.
Для физических лиц и самозанятых
Оплата возможна наличными, переводом по реквизитам компании через приложение банка из счёта.

Условия доставки

Если вы решили воспользоваться нашей доставкой, обратите внимание на несколько важных моментов:

  • ДОСТАВКА ОСУЩЕСТВЛЯЕТСЯ С ПОНЕДЕЛЬНИКА ПО ПЯТНИЦУ С 10:00 ДО 18:00.
  • ТОВАР ПРИВОЗИМ ПО АДРЕСУ, КОТОРЫЙ ВЫ УКАЗЫВАЕТЕ ПРИ ОФОРМЛЕНИИ ЗАКАЗА. Пожалуйста, проверьте данные внимательно, чтобы избежать задержек.
  • ДОСТАВКА В ДРУГИЕ РЕГИОНЫ обсуждается индивидуально — свяжитесь с нами для расчёта и согласования.
  • СТОИМОСТЬ ДОСТАВКИ РАССЧИТЫВАЕТСЯ ОТДЕЛЬНО, в зависимости от веса, габаритов продукции и расстояния. Она указывается в документах отдельной строкой.

Мы стараемся обеспечить быструю и удобную доставку — если у вас есть вопросы, просто свяжитесь с менеджером!